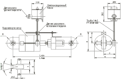
Хидроамортизаторите са предназначени за ограничения на преместването на оборудването и тръбопроводите от първия и втория контур на атомните електростанции при въздействие на сеизмични и аварийни динамични натоварвания.
Хидроамортизаторите обезпечават нормално функциониране на оборудването на АЕЦ при сеизмично въздействие , като максимално разчетеното земетресение е от 9 бала по скалата MSK-64 на земното ниво.

Технически характеристики
| Наименование |
Поемано натоварване, хил |
Разстояние между присъединителните палци, mm |
P-450 |
450 |
1420-1780 |
P-300 |
300 |
1150-1450 |
P-170 |
170 |
910-1210 |
P-100 |
100 |
907-1207 |
P-50 |
50 |
935-1235 |
P-20 |
20 |
1080-1380 |
P-10 |
10 |
720-1020 |
P-5 |
5 |
665-965 |